Beschrijving
Op zoek naar een ruime en verzorgde woning in Muiden? Dan is deze goed onderhouden woning aan De Werven 44 absoluut een bezichtiging waard. De woning combineert sfeer, comfort en praktische leefruimte op een aantrekkelijke manier.
De begane grond beschikt over een fijne, lichte woonkamer een prettige leefruimte met voldoende plaats voor een comfortabele zithoek en een royale eettafel. Aansluitend bevindt zich de vernieuwde keuken uit 2024, uitgevoerd in een moderne stijl en voorzien van eigentijds comfort. Een heerlijke plek voor wie van koken en gezellig samen zijn houdt.
Indeling:
Via de entree bereikt u de ruime en lichte woonkamer met een prettige doorzonopstelling en grote raampartijen aan de achterzijde. Hierdoor beschikt de leefruimte over veel natuurlijke lichtinval en een aangenaam ruimtelijk gevoel. De woonkamer is afgewerkt met een nette laminaatvloer en strak afgewerkte wanden, waardoor een goede basis aanwezig is voor diverse interieurstijlen.
Aan de achterzijde van de woning bevindt zich de open keuken, wat zorgt voor een praktische en eigentijdse indeling. De keuken is vernieuwd in 2024 en uitgevoerd in een moderne, lichte kleurstelling met een donker werkblad. De opstelling biedt veel kastruimte en is voorzien van diverse inbouwapparatuur. Vanuit de keuken is er zicht op de tuin en direct toegang tot de achtergelegen ruimte/uitgang.
Deze begane grond kenmerkt zich door de combinatie van licht, ruimte en een verzorgde afwerking, waardoor het geheel direct een prettige indruk maakt.
1e verdieping:
De eerste verdieping beschikt over een ruime overloop die toegang geeft tot vier in grootte variërende slaapkamers. Hierdoor is deze verdieping bijzonder geschikt voor gezinnen, thuiswerken of het creëren van extra hobby- of logeerruimte.
De badkamer is praktisch ingedeeld en voorzien van een inloopdouche, wastafel en toilet. Dankzij de ruime opzet biedt de badkamer een comfortabele basis voor dagelijks gebruik.
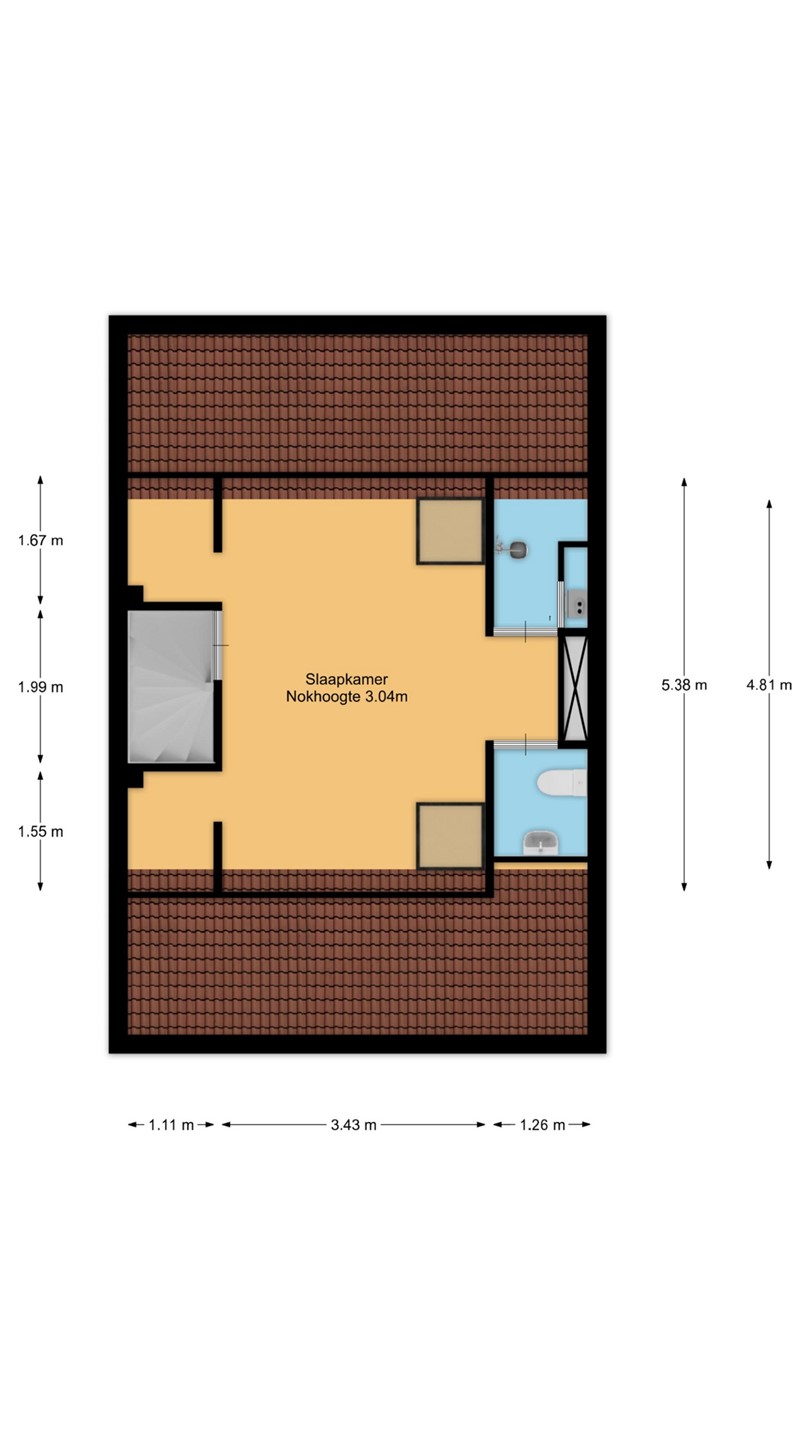
2e verdieping:
De tweede verdieping is praktisch ingedeeld met een ruime slaapkamer en een tweede badkamer met toilet. Daarmee is deze verdieping een grote meerwaarde voor de woning. De badkamer is modern afgewerkt en voorzien van een douche, wastafelmeubel en toilet. Door de aanwezigheid van zowel een extra slaapkamer als extra sanitair is deze verdieping ideaal voor gasten, een ouder kind of werken aan huis.
Heeft deze woning uw interesse gewekt? Maak dan snel een afspraak voor een bezichtiging. Wij laten u deze woning graag van binnen zien.