Beschrijving
Englisch below
Midden in het historische centrum van Weesp gelegen geheel vernieuwd en in UITSTEKENDE staat verkerende 5 kamerappartement met een heerlijk zonnig dakterras van 21 m².
Het appartement heeft een uniek uitzicht over "Smal Weesp" met alle dagelijkse faciliteiten in de direct omgeving.
Indeling:
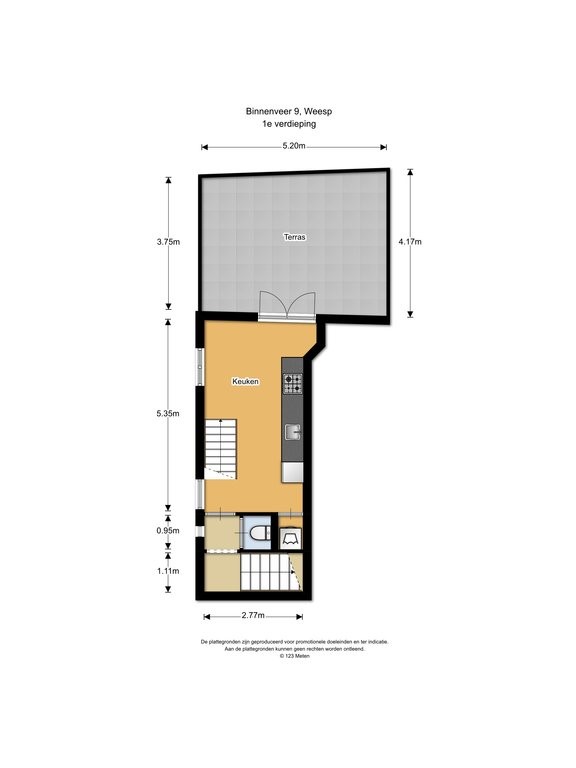
Entree met trap naar de 1e verdieping, gezellige woonkeuken annex dakterras gelegen op het zuiden, toilet en ruimte voor wasmachine/droger.
2e verdieping: Overloop met met aan de achterzijde toegang tot 3 in grootte variërende slaapkamers , kitchenette, 2 vaste kasten met veel bergruimte, badkamer met wastafel, ligbad, separate douche en 2e toilet, aan de voorzijde bevindt zich de woonkamer met een panoramisch uitzicht over Zwaantjes brug en de kom van Weesp.
Bent u op zoek naar een verhuisklaar appartement in UITSTEKENDE staat van onderhoud ?
Dan is dit appartement wellicht het appartement voor u.
Wij laten u het appartement graag zien !
Bijzonderheden:
* Voorbehoud gunning eigenaar
* Geen huisdieren en roken niet toegestaan
* Waarborgsom € 3.800,-
* Huurprijs is exclusief € 200,- voorschot energie gas/elektra
* Waterlevering via een eigen meter.
UW REACTIE GELIEVE PER MAIL
Om in aanmerking te komen voor deze huurwoning hebben wij de volgende documenten nodig:
- Kopie paspoort of rijbewijs;
- Kopie 3 recente salarisstroken;
- Bankafschriften met de bijschrijvingen van het salaris conform de aangeleverde salarisstrook;
- Werkgeversverklaring
- Recente ondertekende verhuurdersverklaring
Aan de hand van deze gegevens zullen wij tevens de NVM Woontoets uitvoeren, waarbij onder andere het identiteitsbewijs wordt gecontroleerd en een kredietcheck wordt gedaan.
Het kan zijn dat wij op basis van de beschikbare gegevens extra informatie van u vragen.
---------------
Right in the historical centre of Weesp located completely renovated and in EXCELLENT condition 5 room apartment with a lovely sunny roof terrace of 21 m².
The apartment has a unique view over "Smal Weesp" with all daily facilities in the immediate vicinity.
Layout:
Entrance with stairs to the 1st floor, cosy kitchen cum roof terrace facing south, toilet and space for washer/dryer.
2nd floor: Landing with rear access to 3 bedrooms varying in size, kitchenette, 2 closets with lots of storage space, bathroom with washbasin, bathtub, separate shower and 2nd toilet, at the front is the living room with a panoramic view.
Are you looking for a move-in ready apartment in EXCELLENT condition?
Then this apartment might be the one for you.
We will gladly show you the apartment !
Particulars:
* Subject to owner 's approval
* No pets and smoking not allowed
* Deposit 2 month rent
* Rental price is excluding € 200,- advance energy payment
* Water supply is trough a private water meter
YOUR REACTION PLEASE BY E-MAIL
To be eligible for this rental property, we need the following documents:
- Copy of passport or driver's license;
- Copy 3 recent salary slips;
- Bank statements with the credits of the salary in accordance with the supplied salary slip;
- employer statement
- Recently signed landlord statement
On the basis of this information, we will also perform the NVM Residential Test, which includes checking the proof of identity and performing a credit check.
We may request additional information from you based on the available data.